Beschrijving
Comfortabel en energiezuinig wonen in Ouverture
Op een prachtige, rustige locatie in de geliefde wijk Ouverture staat deze ruime, vrijstaande en volledig gasloze woning. Met drie royale slaapkamers – waarvan één met een grote inloopkast – en de mogelijkheid tot een vierde slaapkamer op de tweede verdieping, biedt dit huis alle ruimte voor een gezin. Daarnaast beschikt de woning over een jonge luxe keuken, een riant dakterras en een fraai aangelegde tuin.
Een heerlijke plek om thuis te komen
Deze stijlvolle woning uit 2002 is gebouwd met hoogwaardige materialen en oog voor detail. De combinatie van een praktische indeling, veel lichtinval en moderne, energiezuinige voorzieningen zorgt voor een comfortabele en toekomstbestendige woonomgeving. In 2019 zijn de tuin en bestrating vernieuwd, is er een nieuwe vloer gelegd en is een prachtige, eigentijdse keuken geplaatst. Het resultaat is een instapklare gezinswoning die direct een warm thuisgevoel geeft.
Wonen in Ouverture
Wonen in Ouverture staat garant voor rust, ruimte en kindvriendelijkheid. De straten in de wijk zijn ingericht als woonerf, met brede lanen, veel groen en nauwelijks auto’s in het straatbeeld. Voor kinderen zijn er volop speelvoorzieningen, zoals speeltuintjes, een skatebaan en zelfs een schaatsbaan in de winter. Daarnaast zijn er kinderopvang, een brede school en een winkelcentrum met onder andere een supermarkt, bakker en horeca op loopafstand.
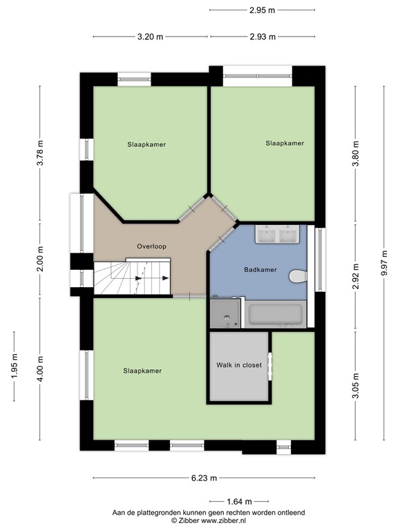
Indeling
Via de ruime hal bereikt u het toilet, de meterkast, de trapopgang en de woonkamer en bijkeuken. De lichte woonkamer, gelegen op het zuiden, voelt direct ruim en uitnodigend aan.
De open keuken aan de achterzijde is praktisch en stijlvol ingericht met opstellingen aan beide zijden. Aan de ene zijde vindt u het werkblad met inductiekookplaat, spoelbak en vaatwasser. Aan de andere zijde is er volop kastruimte, een koelkast en een sfeervolle coffee corner. De combinatie van houtlook en zwarte accenten geeft de keuken een moderne, robuuste uitstraling.
Via de schuifpui loopt u zo de overkapping in de achtertuin in; een heerlijke plek om tot in de late uurtjes buiten te genieten.
De bijkeuken is praktisch ingericht met aansluitingen voor wasapparatuur en een vaste kastenwand waarin de warmtepomp netjes is weggewerkt. Vanuit hier heeft u toegang tot de tuin én tot een tweede inpandige berging (voorheen garage, eenvoudig terug te brengen indien gewenst).
De gehele begane grond is voorzien van comfortabele vloerverwarming en -koeling.
Eerste verdieping
Via de hardhouten trap komt u op de lichte overloop, waar een verticale raampartij met matglas zorgt voor veel daglicht met behoud van privacy.
Hier bevinden zich drie ruime slaapkamers, waaronder één met een royale inloopkast. De centraal gelegen badkamer is compleet uitgevoerd met een ligbad, aparte douche, dubbele wastafel en een tweede toilet.
Tweede verdieping
De tweede vaste trap leidt naar een ruime, multifunctionele verdieping. Deze leent zich perfect als werkruimte, hobbykamer, speelruimte of vierde slaapkamer. Ook bevindt zich hier een vaste kast met de WTW-installatie.
Via de schuifpui bereikt u het riante dakterras van circa 45 m². Het zonnige, op het zuiden gelegen deel biedt veel privacy, fijn uitzicht en is een heerlijke plek om al vroeg in het jaar van de zon te genieten.
Tuin
De voortuin is verzorgd en sfeervol aangelegd. Op de oprit is ruimte voor meerdere auto’s op eigen terrein.
Ook de achtertuin is fraai en onderhoudsvriendelijk ingericht. Direct aan de keuken bevindt zich een stijlvolle aluminium overkapping met terras; een plek waar u het hele jaar door comfortabel buiten kunt zitten, ongeacht het weer.
Bijzonderheden
Energie & duurzaamheid
Deze woning is volledig voorbereid op de toekomst en beschikt over diverse duurzame voorzieningen:
• Volledig gasloos
• Verwarming en koeling via aardwarmte (warmtepomp)
• Vloerverwarming en -koeling in de gehele woning
• WTW-installatie
• 17 zonnepanelen op het zuiden
Bijzonderheden
• Energiezuinig (energielabel A)
• Onderhoudsarme kunststof kozijnen (antraciet met houtnerf)
• Riant dakterras van ca. 45 m²
• Complete badkamer met ligbad en douche
• Overkapping aan de achtergevel
• Gelegen in een rustige, kindvriendelijke wijk
• Dicht bij voorzieningen, station, uitvalswegen en groen
Plattegronden
180219964_1598749_glenn_begane_grond_first_design_20251209_42a21d.jpg
180219964_1598749_glenn_eerste_verdiepi_first_design_20251209_f7dfb5.jpg
180219964_1598749_glenn_tweede_verdiepi_first_design_20251209_ac9d07.jpg
180219964_1598749_glenn_berging_first_design_20251209_678735.jpg