Beschrijving
Instapklaar wonen met 2 meter uitbouw, garage en energielabel A
Ben je op zoek naar een woning waar je zó in kunt? Dan is dit jouw kans! Deze goed onderhouden en sfeervolle woning beschikt over een garage, een royale 2 meter uitbouw aan de achterzijde, heeft 14 zonnepanelen én een goed energielabel wat het een ideale combinatie maakt van comfort, ruimte en duurzaamheid. Dat is lekker wonen!
Indeling
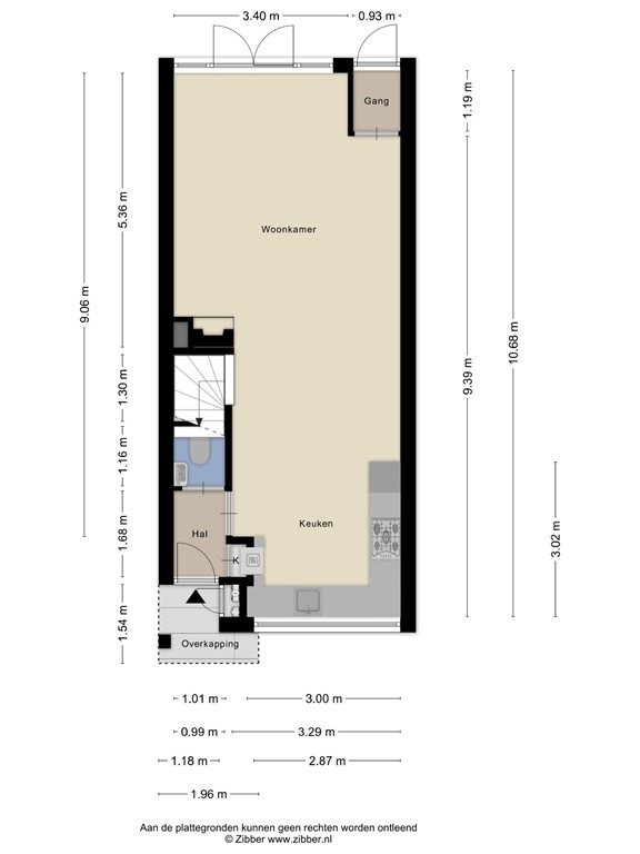
Bij binnenkomst word je verwelkomd in een nette hal, vernieuwd toilet en praktische bergkast. De woning voelt prettig aan, waar de fraaie natuurstenen vloer (met comfortabele vloerverwarming) en stijlvolle open haardpartij zeker aan bijdragen.
Aan de voorzijde bevindt zich de fraaie op maat gemaakte keuken, compleet uitgerust met alle benodigde apparatuur. Lekker licht door het grote raam en onder het kokkerellen kijk je lekker de straat in. Het verlaagde plafond met verlichting zorgt hier voor extra sfeer.
De tuingerichte woonkamer is aan de achterzijde met maar liefst 2 meter uitgebouwd, wat zorgt voor een heerlijke leefruimte met veel licht. Via de openslaande deuren stap je zo de sfeervolle, op het zuiden gelegen stadstuin in. Hier geniet je optimaal van zon, privacy en een prettige “binnen-buiten” beleving. De aanwezige Catalpa boom zorgt bovendien voor natuurlijke verkoeling op warme dagen.
Eerste verdieping
Via de gerenoveerde trap, verlicht door een slimme solartube die zorgt voor een zee aan daglicht, bereik je de eerste verdieping. Hier vind je een overloop die toegang biedt tot een drietal slaapkamers, de badkamer en een praktische inbouwkast, waar de cv-opstelling zijn plaats heeft. Twee kamers beschikken over extra bergruimte/zolderberging, de voorste slaapkamer is voorzien van een inbouwkast.
De recent vernieuwde badkamer is een echte eyecatcher: modern vormgegeven hexagon tegeltjes in combinatie met grote betonlooktegels….heel stijlvol en voorziet in een royale inloopdouche, een fraai badmeubel en een tweede toilet (sanibroyeur).
Tuin
Achterin de tuin bevindt zich de garage, bereikbaar via de achterliggende straat. Deze is voorzien van een betonnen vloer, elektrische - met daarin een extra loop - deur. Daarnaast is er een aangebouwde berging met een ruime toegang, ideaal voor bijvoorbeeld het stallen van een motor.
Bijzonderheden
Pluspunten:
• Onderhoudsvrije kunststof kozijnen met kiep-kantelramen
• Rolluiken op de bovenverdieping
• Onderhoudsvrije gevelbekleding
• Moderne hoekkeuken met massief houten fronten en natuurstenen blad
• Nieuwe moderne badkamer en toilet
• vloerverwarming op de begane grond
• Energielabel A
• 14 zonnepanelen
• Goed onderhouden en direct instapklaar
Kortom: een comfortabele, duurzame en sfeervolle woning waar je je direct thuis voelt!
Ben jij helemaal weg van deze woning aan de Van Hallstraat, dan nodigen wij jou van harte uit voor een bezichtiging. Vul het aanvraagformulier in of neem contact op met ons kantoor; wij laten je deze fijne plek graag ervaren!
Anthonise Makelaars werkt met biedingsplatform Eerlijk Bieden. Elke potentieel koper krijgt een inloglink, waar na te zijn ingelogd inzage is in de dataroom, waar alle relevante informatie van dit object te vinden is. Tevens vind je daar een biedingsformulier, waarmee je jouw bieding kunt uitbrengen. Als er meerdere gegadigden zijn wordt er een sluitingsdatum toegekend en krijgt iedere geïnteresseerde dezelfde kans om een bieding uit te brengen. Als er een koper is toegewezen krijg je als bieder inzicht over hoe het biedingsproces is verlopen.
Plattegronden
184619053_1645245_van_h_begane_grond_first_design_20260417_0bcec4.jpg
184619053_1645245_van_h_eerste_verdiepi_first_design_20260417_7346e1.jpg
184619053_1645245_van_h_vliering_first_design_20260417_a27350.jpg
184619053_1645245_van_h_garage_first_design_20260417_b746ac.jpg