Beschrijving
Wat een heerlijk gezinshuis mogen wij je aanbieden in het gezellige Wolphaartsdijk!
Ben jij op zoek naar comfortabel, duurzaam en zorgeloos wonen op een fijne plek? Dan is deze verzorgde twee-onder-een-kapwoning absoluut een bezichtiging waard. Hier komt alles samen waar een (startend) gezin van droomt: ruimte, licht, comfort én een fijne woonomgeving.
Deze woning is gebouwd in 1994 en de afgelopen jaren met veel zorg en aandacht gemoderniseerd, verduurzaamd en uitgebouwd. In 2021 is er een fraaie aanbouw aan de achterzijde gerealiseerd, waardoor de leefruimte op de begane grond een echte upgrade heeft gekregen. De woning beschikt over een aangebouwde garage én een extra losse garagebox, bereikbaar vanuit de achtertuin; ideaal voor hobby, opslag of extra stalling.
De ligging is minstens zo prettig.
De woning ligt aan de Henry Dunantstraat, met kinderopvang letterlijk aan de overkant. De basisschool om de hoek en de supermarkt op loopafstand, wat het dagelijks leven extra comfortabel maakt. Wolphaartsdijk zelf is een fijn dorp in de gemeente Goes, gelegen aan de zuidzijde van het Veerse Meer. Hier geniet je van de jachthaven, recreatiegebied De Schelphoek en volop mogelijkheden om te zonnen, zwemmen en varen. Met een boothelling in het dorp ligt het water altijd binnen handbereik. Daarnaast zijn de gezellige stadjes Goes en Middelburg met hun historische centra en uitgebreide voorzieningen snel bereikbaar.
Indeling
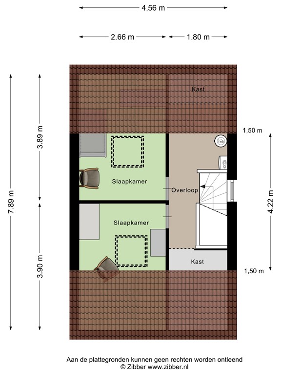
De woning heeft een woonoppervlakte van 107 m², verdeeld over drie verdiepingen.
Begane grond
Dankzij de aanbouw is hier een royale, tuingerichte leefruimte ontstaan waar het heerlijk vertoeven is. Via de schuifpui loop je zo de tuin in. De combinatie van vloerverwarming en een sfeervolle houtkachel zorgt voor comfort in elk seizoen. Aan de voorzijde bevindt zich de moderne zwarte hoekkeuken (2021), voorzien van onder andere een inductiekookplaat, oven en vaatwasser. Fijn dat hier een raam is, zodat je, al lekker kokkerellend de straat kunt inzien.
Eerste verdieping
Hier vind je twee slaapkamers, waarvan de “master” aan de achterzijde is voorzien van praktische kastruimte. Daarnaast is er een aparte ruimte voor wasmachine en droger. De badkamer is in 2023 volledig vernieuwd en beschikt over een tweede toilet, een modern wastafelmeubel en een ruime inloopdouche.
Tweede verdieping
Op deze verdieping bevinden zich nog twee (slaap)kamers. Op de overloop zijn, naast extra bergruimte, de c.v. ketel, de hybride-warmtepomp en de mechanische ventilatiebox geplaatst.
Tuin
De achtertuin is gelegen op het westen en biedt, als de zon schijnt, de hele dag zon. De tuin is volledig omsloten, wat zorgt voor veel privacy en een veilige speelplek voor kinderen en huisdieren. Direct naast de woning is garage nummer één, achterin de tuin is de tweede garage. Deze garage heeft de ontsluiting naar de Minnaarhof. De vrije achterom komt ook hierop uit.
Bijzonderheden
Algemeen
• Bouwjaar: 1994
• Woonoppervlakte ca. 105 m²
• Aanbouw gerealiseerd in 2021
• Vloerverwarming op de begane grond
• Nieuwe keuken (2021)
• Badkamer vernieuwd in 2023
• CV-ketel Remeha Tzerra Ace (2019)
• 8 zonnepanelen (2020)
• Hybride warmtepomp Remeha Elga Ace (2023)
• 3-fasen aansluiting en vernieuwde meterkast (2025)
• De laadpaal en de houtkachel zijn ter overname
• Glasvezelaansluiting aanwezig
• Oprit recent bestraat
• Garage én losse garagebox
Interesse?
Ben je nieuwsgierig geworden en wil je deze woning graag met eigen ogen bekijken? Dan ben je van harte welkom voor een bezichtiging! Klik op de bezichtigingsaanvraag bij deze woning, laat je gegevens achter en wij nemen snel contact met je op. Bellen of mailen mag natuurlijk ook.
Anthonise Makelaars werkt met biedingsplatform Eerlijk Bieden. Elke potentieel koper krijgt een inloglink, waar na te zijn ingelogd inzage is in de dataroom, waar alle relevante informatie van dit object te vinden is. Tevens vind je daar een biedingsformulier, waarmee je jouw bieding kunt uitbrengen. Als er meerdere gegadigden zijn wordt er een sluitingsdatum toegekend en krijgt iedere geïnteresseerde dezelfde kans om een bieding uit te brengen. Als er een koper is toegewezen krijgt u als bieder inzicht over hoe het biedingsproces is verlopen.
Deze presentatie is met zorg samengesteld, aan de inhoud kunnen echter geen rechten worden ontleend.
Plattegronden
182003587_1625003_henry_begane_grond_first_design_20260206_010d1d.jpg
182003587_1625003_henry_eerste_verdiepi_first_design_20260206_552af6.jpg
182003587_1625003_henry_tweede_verdiepi_first_design_20260206_7adae6.jpg
182003587_1625003_henry_garage_first_design_20260206_20eb73 - kopie.jpg