Beschrijving
Anthonise Makelaars mag u de “oude pastorie” van Wolphaartsdijk aanbieden. Een statig pand, degelijk gebouwd in de jaren 20 van de vorige eeuw en was in vroegere tijden de ambtswoning behorende bij de Protestantse kerk die 50 meter verderop ligt.
Het pand heeft de tand des tijds goed doorstaan, renovaties en aanpassingen in het verleden zijn met respect en met behoud van veel authentieke details uitgevoerd, de fraaie kenmerken zijn behouden zodat het pand nog steeds die imposante uitstraling heeft. Van binnen en van buiten. Met veel gevoel voor detail en de sfeer van weleer is men hier te werk gegaan.
Het pand heeft maar liefst 257 m²woonoppervlak en dat is exclusief de (wijn)kelder van ca 20 m². Alle ruimtes in huis zijn royaal bemeten. Met de grote woonkamer, een sfeervolle dichte keuken, drie royale slaapkamers op de verdieping met elk met een eigen badkamer, een grote zolder met nog een slaapkamer én fijne tuin, biedt dit pand u volop mogelijkheden. Heeft u een groot gezin, een gezin met tieners/twintigers die thuis (blijven) wonen, denkt u aan wonen in combinatie met een B&B of heeft u andere plannen na het zien van deze presentatie? Kom gerust eens kijken, u zult versteld staan van de mogelijkheden!
Indeling
Welkom!
Als u binnenkomst door de statige voordeur, langs de chique vestibule met authentieke klapdeur en de hal betreedt met zijn hoge plafonds, fraaie deuren, lambrisering en trappartij met bordes, zult u ongetwijfeld onder de indruk zijn en wederom bevestigd worden; hier woon je op stand. Deze imposante hal is de centrale ruimte van het huis en biedt toegang naar alle vertrekken.
Aan de linkerzijde is de ruime woonkamer. Deze heeft een plafondhoogte van 3.2 m., meet maar liefst 40 m² en heeft, dankzij de vele ramen, een heerlijke lichtinval. De en suite is niet intact; er zijn geen deuren, maar weldegelijk is er een gevoel van een voor- en achterkamer gecreëerd. Op de vloer ligt een whitewash grenen vloer. Aan de achterzijde zijn openslaande deuren naar het terras.
Aan de rechterzijde van de hal vindt u aan de voorzijde een kamer, wat vroeger de ontvangst/werkkamer van de dominee was en nu een fantastische thuiswerkplek voor u gaat zijn. Authentiek is de fraaie hoekschouw, die tezamen met de fraaie kastenwand deze kamer die fijne sfeer van vroeger geven. Wellicht ziet u hier een hobbykamer voor uzelf of een speel/gamekamer voor de kinderen? Of…..vult u het zelf maar in!
Aan het einde van de hal is het toilet, ruim en lekker licht,
De keuken is lekker royaal en rechts aan de achterzijde gesitueerd. Maatwerk met ook weer dat authentieke sfeertje van weleer, maar gelukkig wél met hedendaags gemak zoals een vaatwasser, een koel/vriescombinatie, een tweede koelkast onder het aanrecht en een groot fornuis met oven (Boretti), geplaatst in de originele schouw. Midden in de keuken staat een werkeiland, met een paar krukjes eraan, waar uw gasten/huisgenoten lekker aan kunnen schuiven als u aan het kokkerellen bent. Ziet u uw echtgenote al zitten met een glaasje wijn?
Via een deur in de keuken komt u in de (wijn)kelder, een grote ruimte van ca 20 m² met stahoogte (voor niet al te lange mensen), geheel betegeld en zeer geschikt om al uw wijnen en voorraden te bewaren.
Aansluitend aan de keuken is een royale bijkeuken, waar plaats is voor uw witgoed en eveneens een achterdeur naar de tuin is.
Eerste verdieping
Via de prachtige bordestrap met fraaie traploper (alsof de loper voor u is uitgelegd) komt u op de overloop op de 1e verdieping. Deze biedt toegang tot een drietal slaapkamers.
Slaapkamer 1: de grootste kamer van ca 20 m² ligt aan de voorzijde en heeft uitzicht over de voortuin; een hoog (gestuukt) plafond, fraaie hoge ramen, die zorgen voor een ruimtelijk gevoel en een prettige lichtinval. Aansluitend is de royale wellness badkamer. Heerlijk vertoeven zult hier; de badkamer biedt u een royale inloopdouche met massagedouche, een toilet, een sauna en een vrijstaand bad op pootjes.
Slaapkamer 2: Deze kamer ligt eveneens aan de voorzijde en meet 4 x 3,5 m. Ook deze kamer heeft die hoge ramen, het balkenplafond geeft nog wat extra sfeer. De badkamer is en suite en voorziet in een wastafelmeubel, een toilet en een douche.
Slaapkamer 3: Via een portaaltje betreedt u de slaapkamer van 16 m². Deze kamer ligt aan de achterzijde en heeft een deur naar het platte dak en het raam dat uitziet op de achtertuin. Ook hier weer sfeer door de hoge plafonds (ook een balkenplafond) en hoge ramen. De badkamer is bereikbaar via het portaaltje en een heeft een douche, een wastafelmeubel en een toilet.
De 1e verdieping heeft een plafondhoogte van ca 3 meter en is voorzien van laminaat.
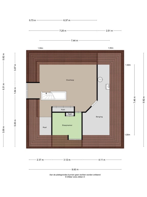
Tweede verdieping
Via een vaste trap is de 2e verdieping te bereiken. Wat direct in het oog springt is de originele balkenconstructie van het dak en de gigantische ruimte die deze zolder biedt. Ook een 4e slaapkamer (in het verleden de dienstbodekamer) en een afgescheiden ruimte waar de c.v. ketel en boiler staan, vindt u hier.
Tuin
De tuin ligt lekker op de zon, op het westen, en heeft een grote losstaande schuur aan de rand van de tuin. Aan de zijkant ligt een brede lange oprit. Deze heeft ter hoogte van de voorgevel een afsluitbaar hek. Uw gasten en/of gezinsleden kunnen doorrijden naar achter, waar plaats is voor een paar auto’s.
Bijzonderheden
De oude pastorie ligt in het hartje van het dorp, met schuin aan de overzijde de supermarkt met warme bakker. Wolphaartsdijk hoort bij de gemeente Goes en ligt aan de zuidkant van het Veerse meer, waar je de jachthaven vindt en heerlijk kunt vertoeven bij recreatiegebied “de schelphoek”; lekker zonnen, zwemmen en varen. Een boothelling om je boot te water te laten is ook aanwezig. De gezellige stadjes Middelburg en Goes met hun fraaie historische kernen liggen op korte afstand, waar verder ook alle stadse voorzieningen te vinden zijn.
Kortom: fijn wonen in Wolphaartsdijk in dit pand die vele mogelijkheden kent en door zijn ligging, grootte en uitstraling zeer geschikt is voor wonen in combinatie met werken of B&B. Als u denkt dat dit pand wel eens uw dromen zou kunnen laten uitkomen en u wilt graag komen bezichtigen, dan nodigen wij u graag uit. Klikt u op de bezichtiging aanvraagbutton waar u deze woning heeft gevonden, vul uw gegevens in en wij zullen snel contact met u opnemen! Een e-mail sturen of telefonisch contact opnemen kan natuurlijk ook!
Anthonise Makelaars werkt met biedingsplatform Eerlijk Bieden. Elke potentieel koper krijgt een inloglink, waar na te zijn ingelogd inzage is in de dataroom, waar relevante informatie van dit object te vinden is. Tevens vindt u daar een biedingsformulier, waarmee u uw bieding kunt uitbrengen. Als er meerdere gegadigden zijn wordt er een sluitingsdatum toegekend en krijgt iedere geïnteresseerde dezelfde kans om een bieding uit te brengen. Als er een koper is toegewezen krijgt u als bieder inzicht over hoe het biedingsproces is verlopen.
Deze presentatie hebben wij met zorg samengesteld, doch kunt u hieraan geen enkel recht ontlenen.
Plattegronden
176791789_1576629_hoofd_begane_grond_first_design_20250913_c0068f.jpg
176791789_1576629_hoofd_eerste_verdiepi_first_design_20250913_6903fa.jpg
176791789_1576629_hoofd_tweede_verdiepi_first_design_20250913_49012c.jpg
176791789_1576629_hoofd_kelder_first_design_20250913_3c84ae.jpg
176791789_1576629_hoofd_berging_first_design_20250913_505e16.jpg
176791789_1576629_hoofd_zolder_first_design_20250913_ea34b8.jpg