Beschrijving
Als je een stukje de Margrietstraat in rijdt, kom je voorbij dit hoekhuis “met de groene luiken”. Een keurig verzorgd huis, van binnen en van buiten. Dit leuke instapklare huis mogen wij jou nu te koop aanbieden! Dat er aan de achterzijde een stuk is aangebouwd, zie je niet direct, maar je ervaart het wel als je binnenstapt, want de woonkamer is lekker royaal en heeft een open keuken. Aan de achterzijde is er, naast een grote bijkeuken, een fraaie badkamer gemaakt. Achter in de tuin staat een forse garage, waar menigeen heel blij van gaat worden, want hier kan naar hartenlust worden gewerkt, geklust, gehobbyd (aan auto’s of motoren) of een heuse mancave worden gecreëerd.
In 2022 heeft de uitbreiding aan de achterzijde plaatsgevonden. Naast deze vergroting van de begane grond is eigenlijk alles vernieuwd; keuken, badkamer, toilet, vloeren, maar ook de elektra is vervangen en is er ook gedacht aan een stukje verduurzaming, de spouwmuren zijn geïsoleerd, er zijn een 12-tal zonnepanelen geïnstalleerd. Je merkt, hier hoef je niet veel meer te doen, enkel je meubels naar binnen zetten en wonen maar!
Indeling
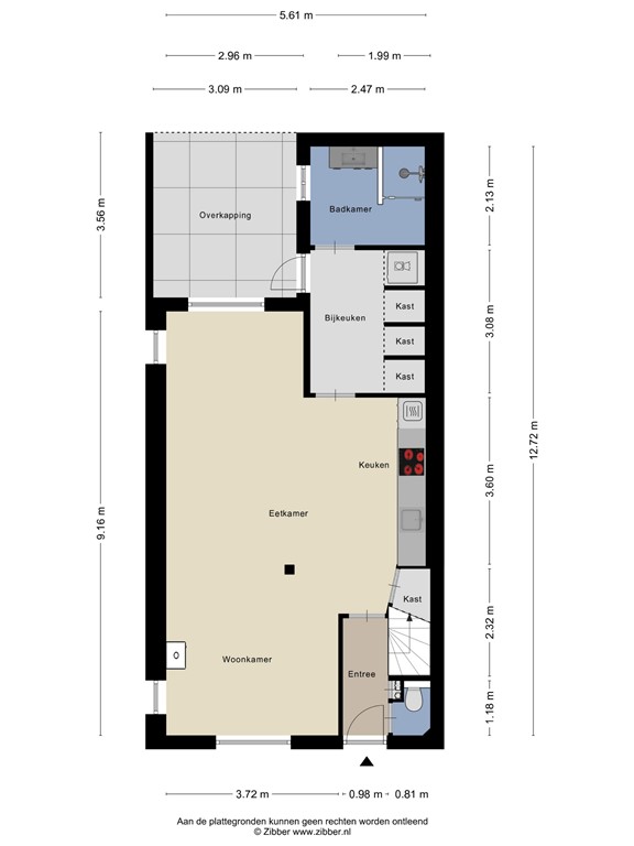
Hal met toilet en trapopgang naar boven. Royale woonkamer met open keuken in landelijke stijl. Deze keuken beschikt over een koelkast, een vaatwasser, een combi-oven en een inductie kookplaat. Aansluitend is een grote bijkeuken, waar, naast veel opbergruimte, er plaats is voor het witgoed. Aan de achterzijde is de badkamer gecreëerd. Fraai uitgevoerd in moderne kleurstelling, met een mooi wastafelmeubel met verwarmde spiegel erboven. Daarnaast is een fijne inloopdouche.
Eerste verdieping
De overloop op de verdieping geeft toegang tot een drietal slaapkamers (3.75 x 2.63, 3.05 x 2.65 en 3 x 2 m.) en de voormalige badkamer. Deze wordt nu gebruikt als bergruimte, maar het wastafelmeubel is nog aanwezig en in gebruik. Eventueel kan hier weer een douche of een toilet worden gemaakt. De twee grootste kamers hebben inbouwkasten. Op de overloop hangt een airco.
Tweede verdieping
De 2e verdieping doet dienst als bergzolder en is bereikbaar middels een vlizotrap.
Tuin
De achtertuin ligt op het zuidoosten en is geheel omsloten. Het ziet er keurig verzorgd uit met mooi straatwerk en plantenborders. Halverwege de tuin staat een stenen berging van ca 2.5 x 3 m. Deze heeft een zoldertje en is voorzien van elektra. De tuin heeft een fijne sfeer door de indeling en variatie, met hier en daar verschillende zithoekjes. Tegen het huis aan is een overkapping, zodat je ook op wat mindere dagen toch lekker buiten kunt zitten.
Achterin de tuin staat de garage. Deze meet 5.74 x 9.04 m. en is voorzien van elektra, is geïsoleerd en heeft een garagedeur. Aan de rechter(tuin)zijde is nog een overkapping met aan de achterkant een kleinere aparte bergruimte.
Bijzonderheden
- Het huis heeft vloer- en spouwmuurisolatie en is geheel voorzien van kunststof kozijnen met dubbele beglazing
- De begane grondvloer is voorzien van vloerverwarming
- Op de 1e verdieping hangt een airco (Mitshubishi uit 2022)
- De woning wordt verwarmd middels een Nefit Proline uit 2022
- Op de garage liggen een 12-tal zonnepanelen
- Energielabel C
Plattegronden
171332932_1544131_margr_begane_grond_first_design_20250411_3f3ae9.jpg
171332932_1544131_margr_eerste_verdiepi_first_design_20250411_f7355d.jpg
171332932_1544131_margr_berging_zolder_first_design_20250411_c1471d.jpg
171332932_1544131_margr_garage_first_design_20250411_5c9562.jpg
171332932_1544131_margr_berging_first_design_20250411_1af8d4.jpg